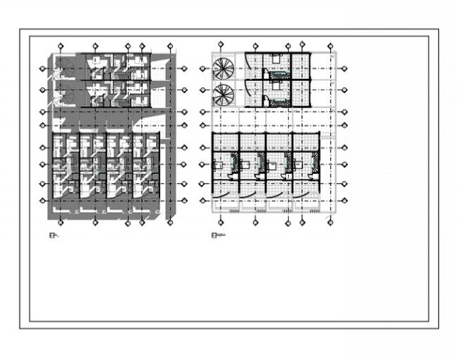
El arquitecto Cristina Fortanet realiza el proyecto para la construcción de seis viviendas en hilera en el Pau Gumbau de Castellón.
Se trata de un proyecto para seis viviendas unifamiliares dispuestas en hilera.
El diseño de las viviendas está pensado para ofrecer la máxima comodidad a sus habitantes y, como el arquitecto Fortanet ya ha hecho con anterioridad en sus proyectos, eliminar barreras arquitectónicas para facilitar su transito a personas con movilidad reducida.
Por ese motivo cada vivienda esta dotada de ascensor para uso particular que facilita el acceso a cada una de las plantas.
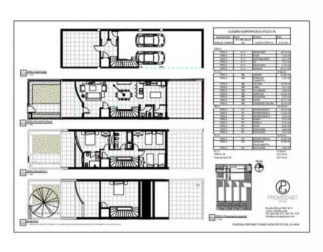
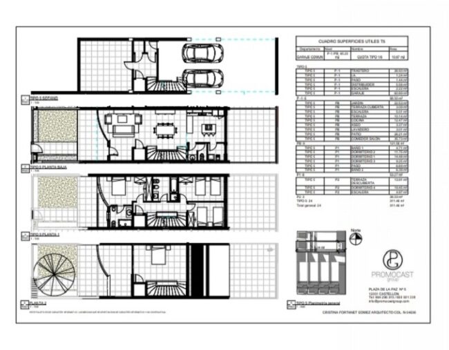
Cada vivienda está compuesta de tres alturas, garaje subterráneo para dos coches y zona ajardinada con terraza de uso particular.
En la distribución de la vivienda encontramos un sótano habilitado para garaje con capacidad para dos automóviles y un trastero cerrado. En la planta baja está el salón, comedor, cocina con lavadero y un aseo. En la primera planta se encuentran el dormitorio principal con su baño en suite, dos dormitorios amplios y otro baño completo. En la segunda planta hay una estancia que se puede utilizar como dormitorio, sala de juegos, despacho, etc…ya que, dada su gran amplitud, puede ser destinada a diferentes usos.
La construcción y promoción correrá a cargo de Promocast Group ubicado en la plaza de la Paz número 5 de Castellón.













